Дом 192 м2 / 8.5 соток
посёлок Сальское Летняя улица,18
Зеленоградский муниципальный округ
17 800 000 ₽
≈ 92 708 ₽/м²
Код объекта: 1626625.
Хотите стать обладателем уютного и просторного дома? Тогда обратите внимание на наше уникальное предложение в ЖК «Солнечная долина»!
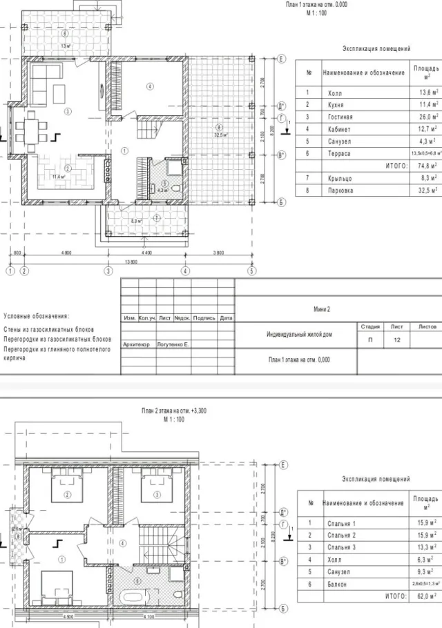
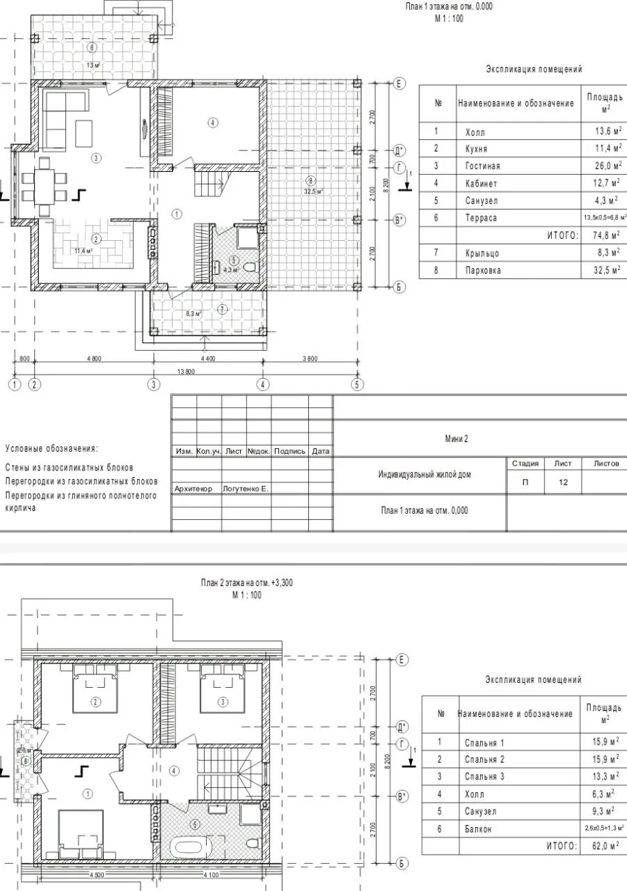
Дом 2-х этажный в 192 кв метра, участок 8.5 соток.
✅В доме, тёплый пол, отделка серый ключ,подключены все коммуникации центральные, газ, вода, канализация, электричество.
✅ Облагороженная территория, посеян газон.
✅Своя Управляющая компания.
✅Цена 17 800 000.
Все коммуникации центральные, есть автономное отопление и электричество на 10 кВт. Дом продаётся в чистовой отделке: стены отшпаклёваны, на первом этаже и в ванной на втором этаже установлен тёплый пол, подключён газ.
ЖК «Солнечная долина» расположен в идеальном месте — в шаговой доступности от дома находятся школа, детский сад, Светлогорский ФОК, магазины «Спар» и «Пятёрочка», автобусная остановка и железнодорожный вокзал.
Этот дом подходит под все виды ипотек, поэтому вы можете стать его владельцем, даже если у вас нет всей суммы для покупки сразу.
Не упустите свой шанс стать обладателем уютного и просторного дома в живописном месте!
Также к Вашему вниманию мы предлагаем вам двухэтажный дом общей площадью 183,2 кв. метра, выполненный в белом ключе. Дом построен в 2023 году из газосиликатных блоков толщиной 30 см, что обеспечивает отличную теплоизоляцию.
Фундамент дома — плита, фасад утеплён пенополистиролом, крыша покрыта металлочерепицей. Участок земли площадью 8,5 соток находится в собственности.
Сопровождает объекты Суржанинова Екатерина (1).
Хотите стать обладателем уютного и просторного дома? Тогда обратите внимание на наше уникальное предложение в ЖК «Солнечная долина»!
Дом 2-х этажный в 192 кв метра, участок 8.5 соток.
✅В доме, тёплый пол, отделка серый ключ,подключены все коммуникации центральные, газ, вода, канализация, электричество.
✅ Облагороженная территория, посеян газон.
✅Своя Управляющая компания.
✅Цена 17 800 000.
Все коммуникации центральные, есть автономное отопление и электричество на 10 кВт. Дом продаётся в чистовой отделке: стены отшпаклёваны, на первом этаже и в ванной на втором этаже установлен тёплый пол, подключён газ.
ЖК «Солнечная долина» расположен в идеальном месте — в шаговой доступности от дома находятся школа, детский сад, Светлогорский ФОК, магазины «Спар» и «Пятёрочка», автобусная остановка и железнодорожный вокзал.
Этот дом подходит под все виды ипотек, поэтому вы можете стать его владельцем, даже если у вас нет всей суммы для покупки сразу.
Не упустите свой шанс стать обладателем уютного и просторного дома в живописном месте!
Также к Вашему вниманию мы предлагаем вам двухэтажный дом общей площадью 183,2 кв. метра, выполненный в белом ключе. Дом построен в 2023 году из газосиликатных блоков толщиной 30 см, что обеспечивает отличную теплоизоляцию.
Фундамент дома — плита, фасад утеплён пенополистиролом, крыша покрыта металлочерепицей. Участок земли площадью 8,5 соток находится в собственности.
Сопровождает объекты Суржанинова Екатерина (1).
-
Общая площадь192 м²
-
Электричество в домеда
-
Водоснабжение в домеда
-
Газ в домеда
-
Канализация в домеда
-
Отопление в домеда
-
Площадь участка8.5 соток
-
Назначение участкаИЖС