Дом 192 м² / 8.5 соток
Сальское, Летняя ул., 18
17 800 000 ₽
                        ≈ 92 708 ₽/м²
                    
                                        Арт. 118886511  
Код объекта: 1626625.
 
Хотите стать обладателем уютного и просторного дома?
 
Тогда обратите внимание на наше уникальное предложение в ЖК «Солнечная долина»!
 
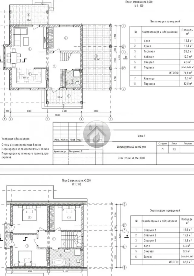
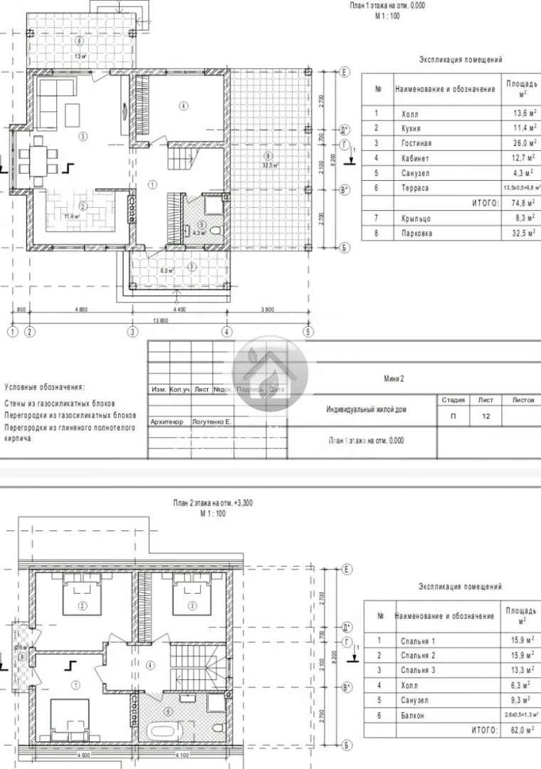
Дом 2-х этажный в 192 кв метра, участок 8.5 соток.
 
В доме, тёплый пол, отделка серый ключ,подключены все коммуникации центральные, газ, вода, канализация, электричество.
 
Облагороженная территория, посеян газон.
 
Своя Управляющая компания.Цена 17 800 000.
 
Все коммуникации центральные, есть автономное отопление и электричество на 10 кВт. Дом продаётся в чистовой отделке: стены отшпаклёваны, на первом этаже и в ванной на втором этаже установлен тёплый пол, подключён газ.ЖК «Солнечная долина» расположен в идеальном месте — в шаговой доступности от дома находятся школа, детский сад, Светлогорский ФОК, магазины «Спар» и «Пятёрочка», автобусная остановка и железнодорожный вокзал.Этот дом подходит под все виды ипотек, поэтому вы можете стать его владельцем, даже если у вас нет всей суммы для покупки сразу.Не упустите свой шанс стать обладателем уютного и просторного дома в живописном месте!Также к Вашему вниманию мы предлагаем вам двухэтажный дом общей площадью 183,2 кв. метра, выполненный в белом ключе. Дом построен в 2023 году из газосиликатных блоков толщиной 30 см, что обеспечивает отличную теплоизоляцию.Фундамент дома — плита, фасад утеплён пенополистиролом, крыша покрыта металлочерепицей. Участок земли площадью 8,5 соток находится в собственности.
 
Сопровождает объекты Суржанинова Екатерина (1).
            Код объекта: 1626625.
Хотите стать обладателем уютного и просторного дома?
Тогда обратите внимание на наше уникальное предложение в ЖК «Солнечная долина»!
Дом 2-х этажный в 192 кв метра, участок 8.5 соток.
В доме, тёплый пол, отделка серый ключ,подключены все коммуникации центральные, газ, вода, канализация, электричество.
Облагороженная территория, посеян газон.
Своя Управляющая компания.Цена 17 800 000.
Все коммуникации центральные, есть автономное отопление и электричество на 10 кВт. Дом продаётся в чистовой отделке: стены отшпаклёваны, на первом этаже и в ванной на втором этаже установлен тёплый пол, подключён газ.ЖК «Солнечная долина» расположен в идеальном месте — в шаговой доступности от дома находятся школа, детский сад, Светлогорский ФОК, магазины «Спар» и «Пятёрочка», автобусная остановка и железнодорожный вокзал.Этот дом подходит под все виды ипотек, поэтому вы можете стать его владельцем, даже если у вас нет всей суммы для покупки сразу.Не упустите свой шанс стать обладателем уютного и просторного дома в живописном месте!Также к Вашему вниманию мы предлагаем вам двухэтажный дом общей площадью 183,2 кв. метра, выполненный в белом ключе. Дом построен в 2023 году из газосиликатных блоков толщиной 30 см, что обеспечивает отличную теплоизоляцию.Фундамент дома — плита, фасад утеплён пенополистиролом, крыша покрыта металлочерепицей. Участок земли площадью 8,5 соток находится в собственности.
Сопровождает объекты Суржанинова Екатерина (1).
- 
                                Комнат3
- 
                            Общая площадь192 м²
- 
                                Этажность2
- 
                                Состояниетребует ремонта
- 
                                Материал домаблочный
- 
                                Электричество в домеда
- 
                                Водоснабжение в домеда
- 
                                Газ в домеда
- 
                                Канализация в домеда
- 
                                Отопление в домеда
- 
                                Площадь участка8.5 соток
- 
                                Назначение участкаИЖС
 
                                                     
                                                     
                                                     
                                                     
                                                     
                                                    